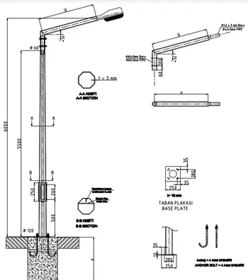
Galvanized Lighting Poles

From 3 meter to 15 meters, Single - Double - Trible - Quadruple Consoles, Old Tedaş, New Tedaş, Decorative, If requested Painted.

Write down the word (min. 3 character) you are searching for and press "enter".
Press "ESC" to close.